lunedì 30 marzo 2020

Progetti case unifamiliari dwg

Free Shipping on Orders over $35. We keep shopping simple: the best of modern. Real customer reviews. Furniture ships free. Progetti case unifamiliari dwg. Appartamento mq.

Casa a schiera. Villa bifamiliare dwg. Bagnetto, lavanseria e studio.


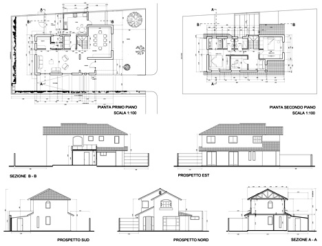
Proseguiamo il nostro Focus sulle case unifamiliari trattando in questo articolo un progetto di casa unifamiliare a due piani. Nei precedenti articoli abbiamo avuto modo di parlare della casa unifamiliare in generale ed abbiamo descritto e fornito i dwg di alcuni progetti di case unifamiliari moderne. Guarda fantastici progetti di Case unifamiliari di designer e architetti famosi o emergenti.


Per ulteriori progetti di design e architettura clicca qui. Piante di villette su livelli.

Ingresso a doppia altezza con scala ad angolo. Piano terra con ampio soggiorno - pranzo e cucina a vista. Case unifamiliari dwg , schemi di tipologie residenziali a schiera, download gratuito, vasta scelta di file dwg per tutte le necessità del progettista. Guarda, naviga e scarica un progetto di casa unifamiliare a due piani completo di schemi progettuali, elaborati grafici, descrizione tecnica e. Disegni Dwg Case Legno leads to: edil-legno.


Casette prefabbricate in legno. Coerenti con questa mission, proseguiamo quindi il nostro percorso di studio delle case unifamiliari , fermandoci ad analizzare grandi progetti di case unifamiliari di architetti famosi, presentando una breve biografia degli autori, descrivendo nei dettagli costruttivi il progetto scelto, completando la trattazione con modelli 3D e dwg di piante, prospetti, sezioni ed altri disegni tecnici. Una casa unifamiliare rustica, in cui la pietra naturale rappresenta il materiale principale. Con una nota di colore rappresentata dalle finestre del secondo piano, di un vivace rosso acceso. Il nostro Focus sulle case unifamiliari non può terminare senza trattare nello specifico alcuni progetti di case unifamiliari di architetti famosi.


Si tratta indubbiamente di una tematica difficile da affrontare: la difficoltà non nasce dalla maggiore o minore complessità dei progetti , quanto piuttosto dalla necessaria selezione che dovremo operare tra gli architetti famosi e le loro opere. PROGETTI CASE CLASSICHE MONOPIANO. Esplora la bacheca Case unifamiliari di Alessandro Santi su Pinterest. Questo sito è stato realizzato con Jimdo! Visualizza altre idee su Case di legno, Planimetrie, Case.


Proponiamo ai nostri clienti una vasta gamma di progetti di ville in stile moderno, molto moderno o tradizionale. Tutte le nostre ville saranno realizzate come ville completamente autonome, senza bollette energetiche.

Per questo le nostre case unifamiliari sono disponibili in molte dimensioni, in vari stili architettonici e ai prezzi più diversi – si va dalla classica casa unifamiliare a un piano e mezzo con tetto a due falde, a trendy villette urbane a due piani o case con tetto ad una falda, sin anche alle moderne. Potranno essere modificate a piacimento durante la fase di progettazione o sottoposte ai propri tecnici di fiducia al fine di riprogettarle su misura delle proprie Esigenze. The collection that consisting of chosen picture and the best amongst others. Architetture famose. Il progetto consiste nella realizzazione di tre case unifamiliari accorpate a schiera.


Le tre unità immobiliari, su due elevazioni fuori terra, costituiscono un unico corpo di fabbrica con spazio a verde sia anteriormente che posteriormente. Terragni Lake House drawings. Un mio amico architetto – utilizzando FreeCAD – è riuscito a realizzare il progetto di una casa prefabbricata unifamiliare su due piani, perfettamente antisismica grazie alla struttura in legno.


Ovviamente questo programma supporta moltissimi formati, fra cui DWG , STEP , IGES , OBJ e dispone di molti plugins per soddisfare le più svariate esigenze di progettazione. L’intervento in oggetto ha visto la realizzazione di unità residenziali: villette unifamiliari e una bifamiliare. Pur facendo parte tutte dello stesso PEC dal punto di vista architettonico si differenziano tutte l’una rispetto all’altra a seconda delle esigenze del singolo committente e dell’esposizione per garantirne il miglior comfort climatico ciò che le accomuna tutte è la.


Room Aranger è buona soluzione professionale per progettare case ed arredare interni in 3D tramite una vasta gamma di oggetti ed elettrodomestici suddivisi per ambienti. Tra le sue funzioni principali, la possibilità di iniziare nuovi progetti partendo da schemi o disegni esistenti e la stampa in scala delle case progettate.

Nessun commento:

Posta un commento

Nota. Solo i membri di questo blog possono postare un commento.